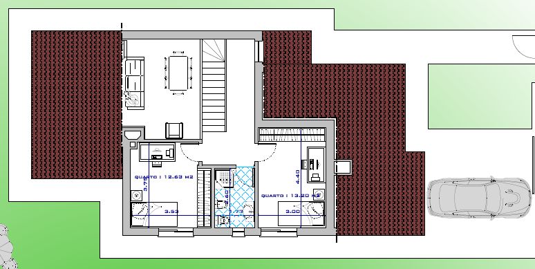
guardadopinheiropiso1